产品规范 | |
主要零部件材料 |
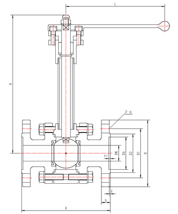
外型尺寸与连接尺寸
产品型号 | DQ41F-100P低温球阀 | 重量 (kg) | |||||||||||
产品代号 | 通径 DN(mm) | 尺寸(mm) | |||||||||||
A | H | D | D1 | D2 | D6 | Z-Ф | b | f | f1 | L | |||
622Q15AB2A3 | 15 | 170 | 207 | 105 | 75 | 55 | 40 | 4-14 | 20 | 2 | 3 | 140 | 5.7 |
622Q20AB2A3 | 20 | 190 | 239 | 125 | 90 | 68 | 51 | 4-18 | 22 | 2 | 3 | 160 | 7.6 |
622Q25AB2A3 | 25 | 210 | 254 | 135 | 100 | 78 | 58 | 4-18 | 24 | 2 | 3 | 180 | 9.7 |
622Q32AB2A3 | 32 | 230 | 280 | 150 | 110 | 82 | 66 | 4-23 | 24 | 2 | 3 | 200 | 15.3 |
622Q40AB2A3 | 40 | 260 | 292 | 165 | 125 | 95 | 76 | 4-23 | 26 | 3 | 3 | 200 | 18.6 |
622Q50AB2A3 | 50 | 300 | 322 | 195 | 145 | 112 | 88 | 4-25 | 28 | 3 | 4 | 250 | 25.1 |
- 上一篇:DQ41F-64P低温球阀
- 下一篇:DQ41F-160P低温球阀




