DJ41F-300LB低温长轴截止阀
产品规范 | |
主要零部件材料 |
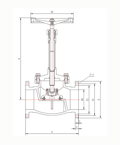
外型尺寸与连接尺寸
产品型号 | DJ41F-300LB低温截止阀 | 重量 (kg) | ||||||||||
产品代号 | 通径 DN(in) | 尺寸(mm) | ||||||||||
A | H1 | H2 | D | D1 | D2 | Z-Ф | b | f | D0 | |||
B22J250AB2A3 | 10 | 622 | 985 | 860 | 444 | 387.5 | 324 | 16-29 | 47.7 | 1.6 | 450 | 248.7 |
B22J300AB2A3 | 12 | 711 | 1080 | 930 | 521 | 451 | 381 | 16-32 | 50.8 | 1.6 | 560 | 334.5 |
- 上一篇:DJ41F-300LB低温长轴截止阀
- 下一篇:DJ41F-600LB低温长轴截止阀




