J61F-40P常温截止阀(SW)
产品规范 | |
主要零部件材料 |
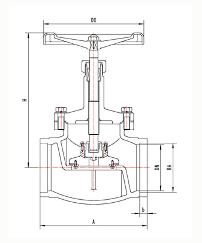
外型尺寸与连接尺寸
产品型号 | J61F-40P常温截止阀 | 重量 (kg) | ||||||
产品代号 | 通径 DN(mm) | 尺寸(mm) | ||||||
A | H1 | H2 | b | RA | D0 | |||
433J250AB2A4 | 250 | 520 | 745 | 620 | 30 | 274 | 450 | 178.3 |
433J300AB2A4 | 300 | 610 | 840 | 690 | 30 | 326 | 560 | 235.6 |
- 上一篇:J61F-40P常温截止阀(SW)
- 下一篇:DJ41F-150LB低温长轴截止阀




