产品规范 | ![]() |
主要零部件材料 |
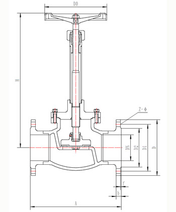
外型尺寸与连接尺寸
产品型号 | DJ41F-16P低温截止阀 | 重量 (kg) | ||||||||||
产品代号 | 通径 DN(mm) | 尺寸(mm) | ||||||||||
L | H1 | H2 | D | D1 | D2 | Z-Ф | b | f | D0 | |||
222J65AB2A3 | 65 | 290 | 473 | 440 | 180 | 145 | 120 | 8-18 | 22 | 3 | 200 | 18.4 |
222J80AB2A3 | 80 | 310 | 510 | 470 | 195 | 160 | 135 | 8-18 | 22 | 3 | 240 | 30.1 |
222J100AB2A3 | 100 | 350 | 589 | 539 | 230 | 190 | 160 | 8-23 | 24 | 3 | 280 | 40.2 |
222J125AB2A3 | 125 | 400 | 665 | 602 | 270 | 220 | 188 | 8-25 | 28 | 3 | 300 | 53.9 |
222J150AB2A3 | 150 | 480 | 713 | 638 | 300 | 250 | 218 | 8-25 | 30 | 3 | 300 | 68.3 |
222J200AB2A3 | 200 | 600 | 805 | 705 | 375 | 320 | 282 | 12-30 | 38 | 3 | 360 | 134.2 |
- 上一篇:DJ41F-16P低温截止阀
- 下一篇:DJ41F-16P低温截止阀





