产品规范 | |
主要零部件材料 |
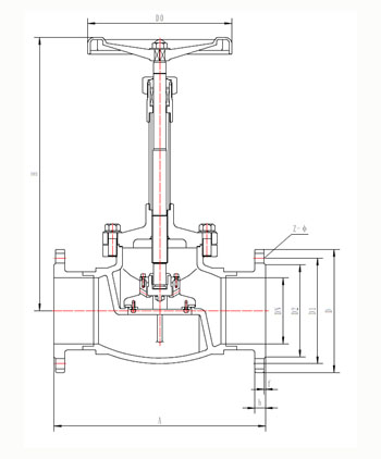
外型尺寸与连接尺寸
产品型号 | DJ41F-16P低温截止阀 | 重量 (kg) | ||||||||||
产品代号 | 通径 DN(mm) | 尺寸(mm) | ||||||||||
L | H1 | H2 | D | D1 | D2 | Z-Ф | b | f | D0 | |||
222J250AB2A3 | 250 | 730 | 985 | 860 | 450 | 385 | 345 | 12-34 | 42 | 4 | 450 | 248.7 |
222J300AB2A3 | 300 | 850 | 1080 | 930 | 515 | 450 | 408 | 16-34 | 46 | 4 | 560 | 334.5 |
- 上一篇:DJ41F-16P低温截止阀
- 下一篇:DJ41F-25P低温截止阀




